Dock In Four
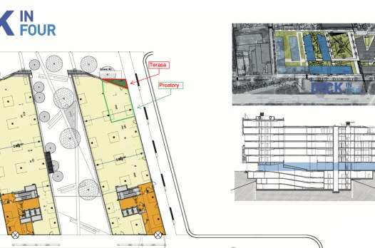
Boudníkova – Prague 8
| Rent: | Price on request - 21 EUR per sqm/month |
|---|---|
| Service charges: | 140 CZK per sqm/month |
| Parking: | 150 EUR per place/month |
| Terasa: | 7 EUR per sqm/month |
| Deposit: | 3 monthly rents |
| Minimum rental period: | 60 months |
(Prices are without VAT)
DOCK IN FOUR is a six-storey building offering a total of 25311 m2 of office space and providing the highest standard of fit-out and working environment. The surrounding atmosphere is enhanced by beautiful parkland and two dead-end arms of the Vltava River, where you can find boats moored at the docks. In the immediate vicinity there is also the Thomayer Park, which is suitable for both active and passive recreation. Excellent public transport accessibility is ensured by the immediate proximity of the metro station B - Palmovka, as well as a number of tram connections. The strategic location also offers excellent accessibility by car, either to the city centre or to the D1, D8 and D11 motorways.
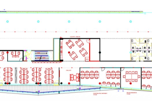
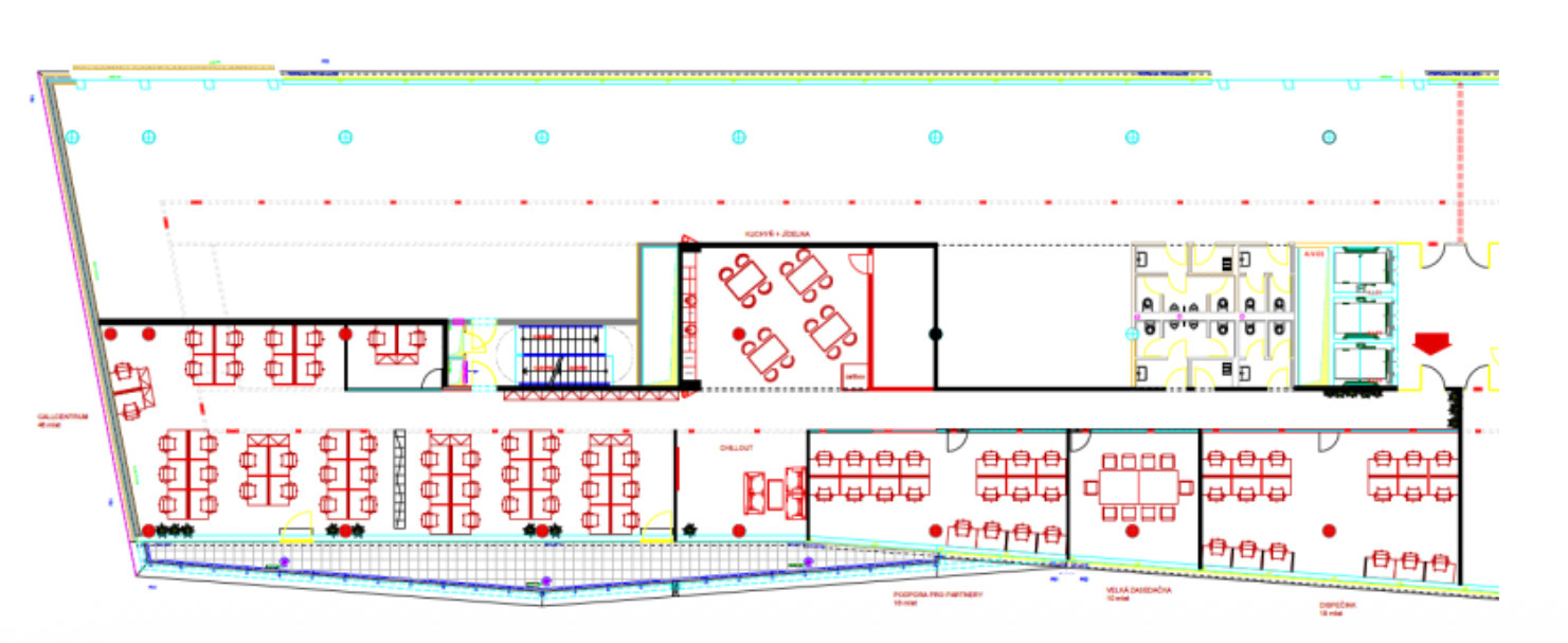
Free spaces
Contact





























































































