BB Centrum Villas
Želetavská 1448/7 – Prague 4
| Rent: | od 15 EUR per sqm/month |
|---|---|
| Service charges: | 142 CZK per sqm/month |
| Parking: | 125 EUR per place/month |
| Deposit: | 3 monthly rents |
| Minimum rental period: | 36 months |
(Prices are without VAT)
The administrative project VILLAS comes from the architectural studio Aulík Fišer architekti. It consists of a set of two buildings built in 2002 and interconnected by a common ground floor with a third building, the RESIDENCE BB CENTRUM residential building. The two office buildings offer a total of 8,000 m2 of leasable space on six floors and 218 parking spaces on the underground level. The architecturally very balanced construction of both buildings allows for variable adjustments of the space on individual floors according to the tenant's requirements.
Cooling/Air conditioning
Elevator
Parking
Disposition changes
Raised floor
Opening windows
Reception
Flexible layout
Optical internet connection
Security 24/7
Camera system
Energy class: C - Úsporná
Free spaces
Type
Download offer
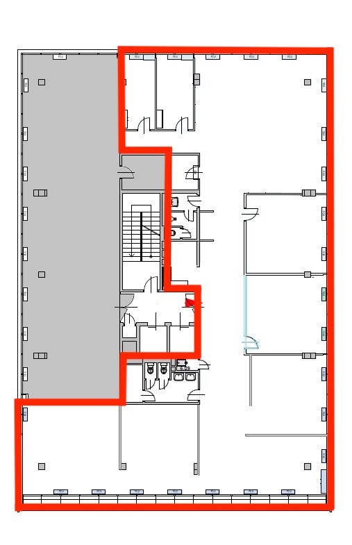
Floor plan
Size
Floor
Price per sqm
Available
Contact










