HYBE
Hybernská 2086/15 – Prague 1
| Rent: | 33 - 60 EUR per sqm/month |
|---|---|
| Service charges: | 150 CZK per sqm/month |
| Terasa: | 6 EUR per sqm/month |
| Deposit: | 3 monthly rents |
| Minimum rental period: | 60 months |
(Prices are without VAT)
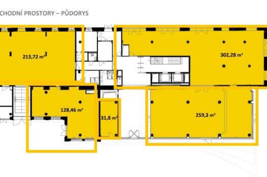
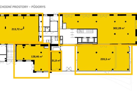
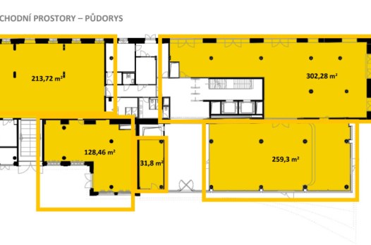
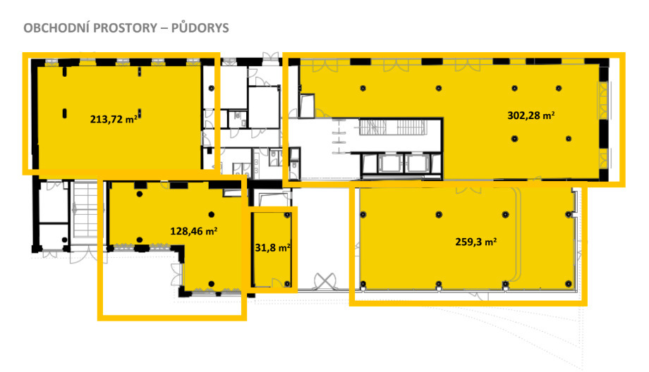
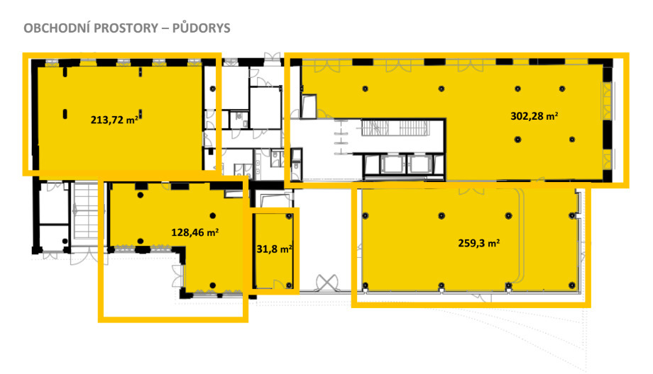
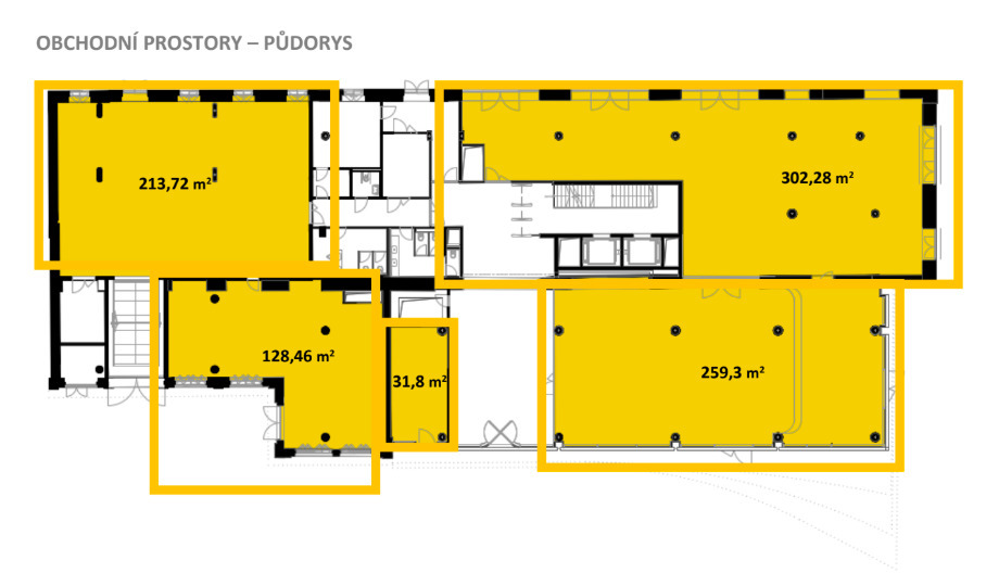
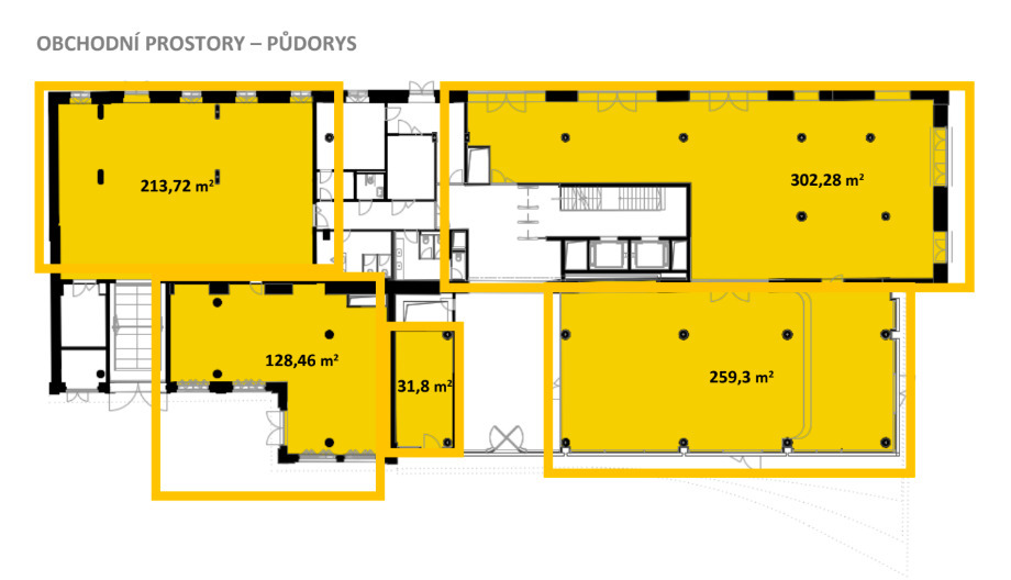
HYBE is an extraordinary office and retail space in the immediate vicinity of Masaryčka and Masarykova nádraží. HYBE embodies the transformation of an exceptional location in the center of the metropolis and will offer a modern synthesis of functions for its tenants and visitors. Its architectural concept follows the award-winning Masaryčka while honoring and preserving the valuable historical parts of the former post office building. The building will be located at a major transport hub, which can be quickly reached by train, metro and tram. The floor can be variably divided into up to three rental units or left as one unit. Most floors have their own private terraces. There is also a community terrace for all tenants of the building. HYBE offers over 5,900 m2 of rentable office and retail space.
Free spaces
Contact













































































































