South Point
Vyskočilova 1566 – Prague 4
| Rent: | 13,90 - 19,90 EUR per sqm/month |
|---|---|
| Service charges: | 130 CZK per sqm/month |
| Parking: | 100 EUR per place/month |
| Deposit: | 3 monthly rents |
| Minimum rental period: | 36 months |
(Prices are without VAT)
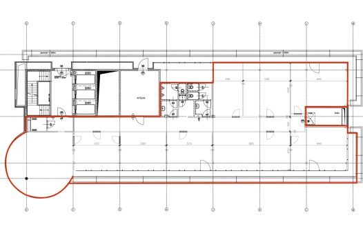
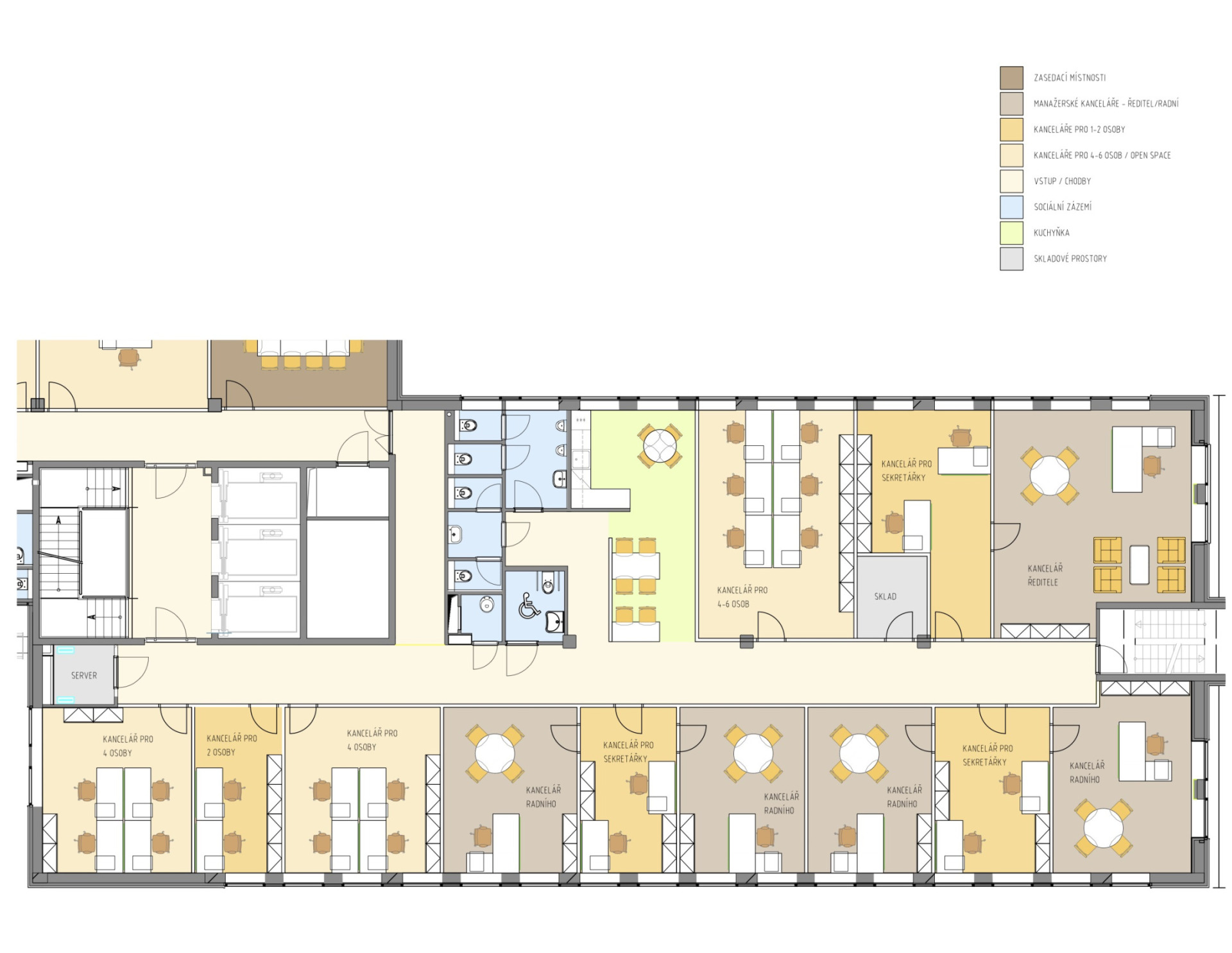
The South Point building stands out for its unique position and original design. It is located in one of the most desirable business areas in Prague, in Vyskočilova Street in Prague 4. It is also located right next to 5. května Street, which connects the centre of Prague with the D1 motorway to Brno. The shopping centre and the Budějovická metro station are just a five-minute walk from the building. BB Centrum is also within a similar distance. The Pankrác commercial centre is about ten minutes' walk away. South Point is very close to the service and business hotspots in the Prague 4 area. In addition, South Point's unique location provides a lot of privacy and convenience. It is also an unmissable landmark of the surrounding area. The opening windows, which provide a magnificent view of Prague, add to the special atmosphere of the building. The total leasable area of the building is 7510 m2. 131 parking spaces are available in the building.
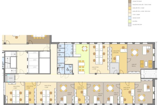
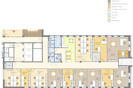
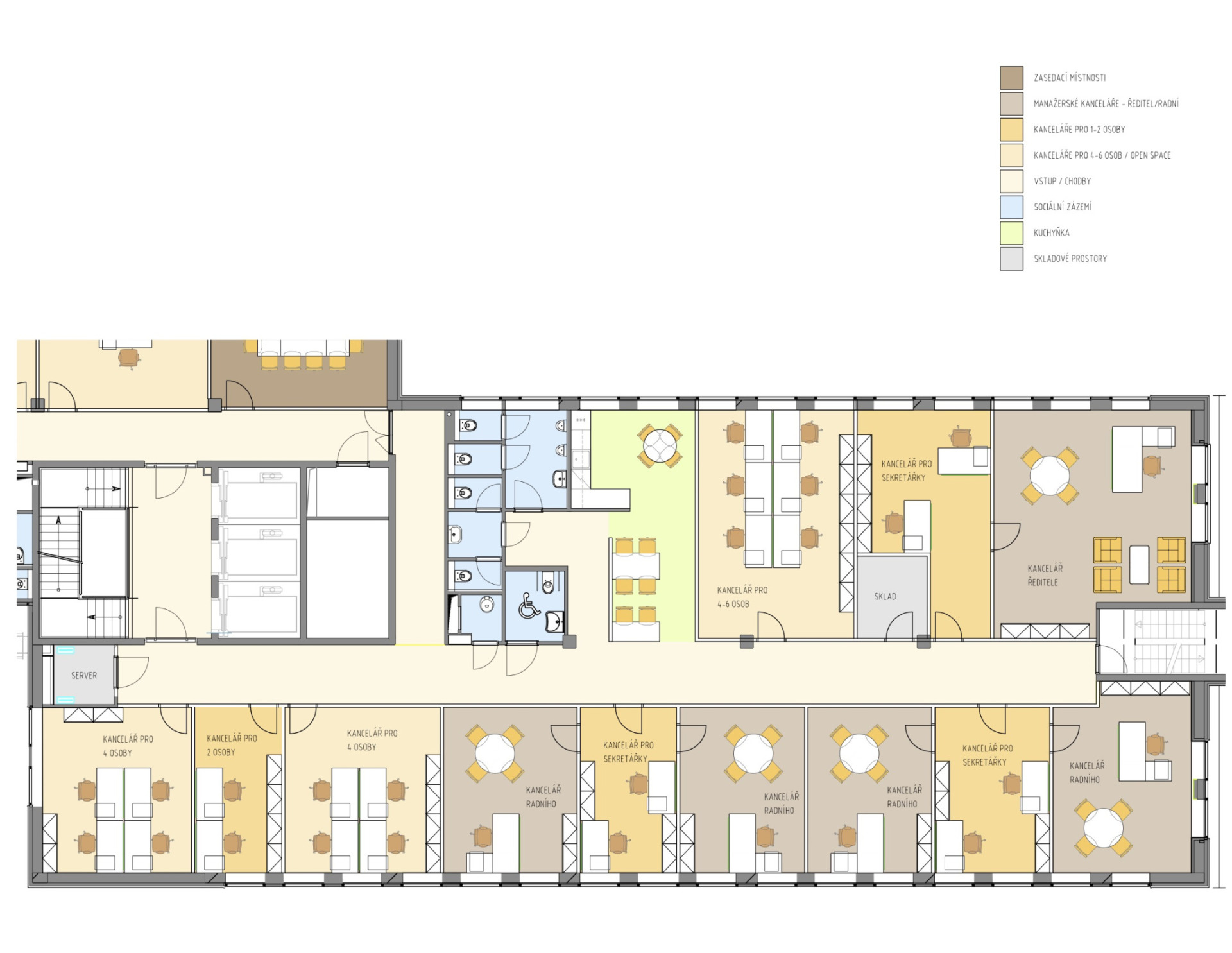
Free spaces
Contact



























































