River Garden II
Rohanské nábřeží 678/25 – Prague 8
| Rent: | od 19,30 EUR per sqm/month |
|---|---|
| Service charges: | 125 CZK per sqm/month |
| Parking: | 150 EUR per place/month |
| Terasa: | 2,50 EUR per sqm/month |
| Deposit: | 3 monthly rents |
| Minimum rental period: | 60 months |
(Prices are without VAT)
The River Garden project is located on Rohanský nábřeží in Prague 8 - Karlín, one of the most dynamically developing commercial locations in Prague. The project has excellent accessibility by car and public transport, it is located 100m from the metro station and tram stop Křižíkova and close to the Prague motorway and connections to the D1, D5, D8 and D11 motorways.
Cooling/Air conditioning
Elevator
Parking
Disposition changes
Raised floor
Opening windows
Reception
Storage
Attendance system (cards)
Flexible layout
Optical internet connection
Security 24/7
Backup power source
Bike room
Charging electric cars
Camera system
Energy class: B - Velmi úsporná
Free spaces
Type
Download offer
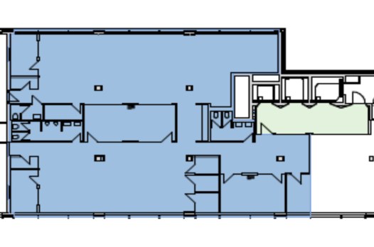
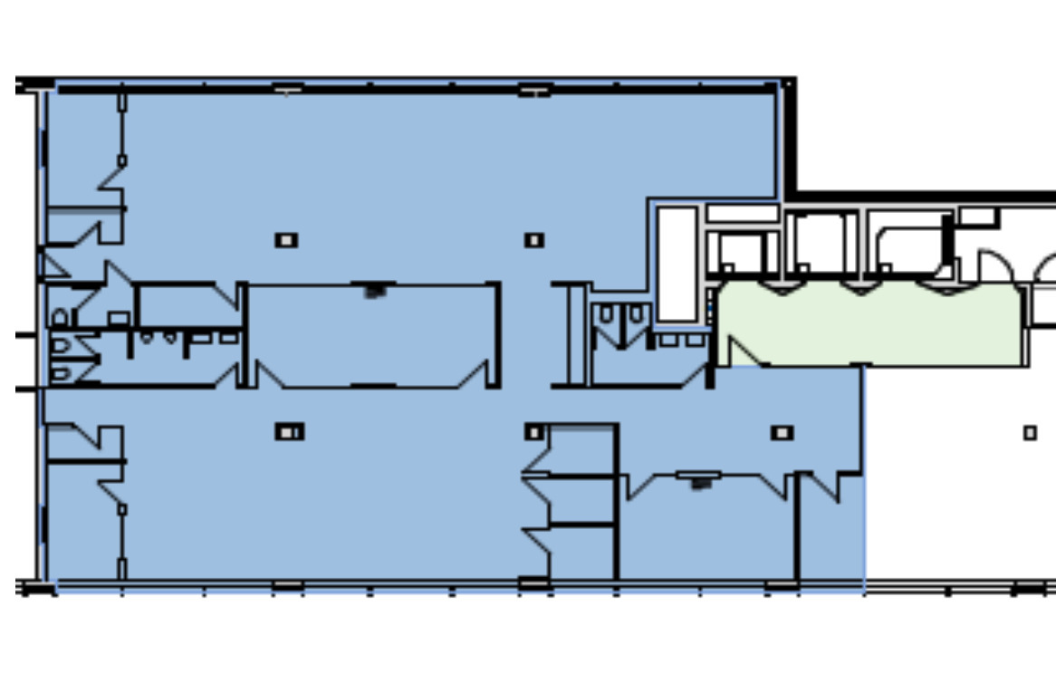
Floor plan
Size
Floor
Price per sqm
Available
Contact





















