Prime
Lomnického 1742/2a – Prague 4
| Rent: | 15,75 - 18 EUR per sqm/month |
|---|---|
| Service charges: | 180 CZK per sqm/month |
| Parking: | 135 EUR per place/month |
| Deposit: | 3 monthly rents |
| Minimum rental period: | 60 months |
(Prices are without VAT)
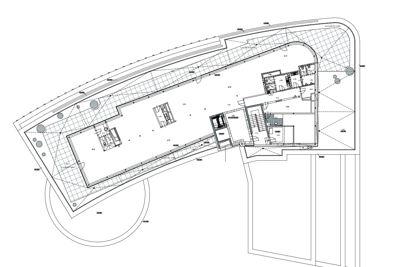
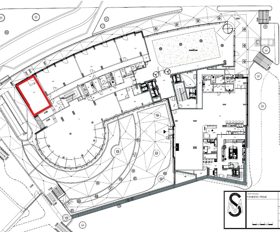
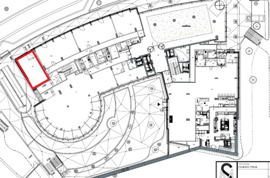
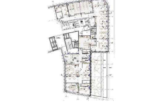
Prime Office Building is a modern office building located just a few steps from the metro stop C - Pražského Povstání. The building is easily accessible from the Prague main road and from Jižní spojka. There are bus and tram stops in the vicinity, which contribute to the excellent accessibility of public transport. The location has complete infrastructure and civic amenities, within walking distance are restaurants, shops and the Arkády Pankrác shopping centre. Prime has been designed to provide its tenants with the highest comfort for work. It offers a total of 7200 m2 of office space on eight floors, which meets the highest standards. Thanks to sophisticated design elements, the future form of the offices can be variably adapted to the requirements of its tenants. All offices are supplied with plenty of daylight. Prime offers its tenants a spacious, representative lobby with an entrance reception, for the construction of which (and the entire interior of the building) original materials such as copper, travertine and wood in various finishes were used. The building has a security service and a 24/7 central reception. It is possible to rent a garage space.
Free spaces
Contact

























